№1078237 · 27.04.2026 · 588 просмотров (+3 сегодня)
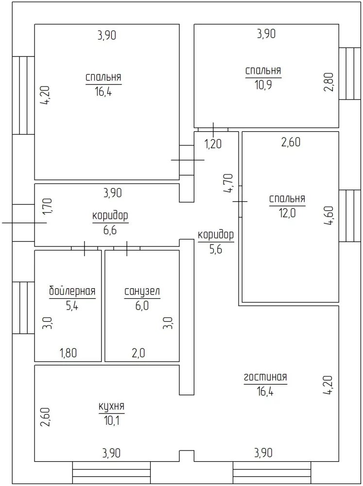
продается фундамент по улице Вотякова, сети рядом с участком (свет,вода водоотведение), в районе ведется застройка, в 100 метрах от ул Спортивная, на этом фундаменте можно построить дом с такой планировкой
Рекомендации
© СМИ «В ГАЕ РУ» • 18+
